
Embodying a cultural trait unique to Filipinos, the re-branded Manila Travelers Apartel (MTA) showcases the warm and raw sensibilities of a relentless, yet vibrantly caring hospitality. Any traveler, whether from abroad or just the next province, can engage in the urban life the city has to offer and return home to comfort in MTA.
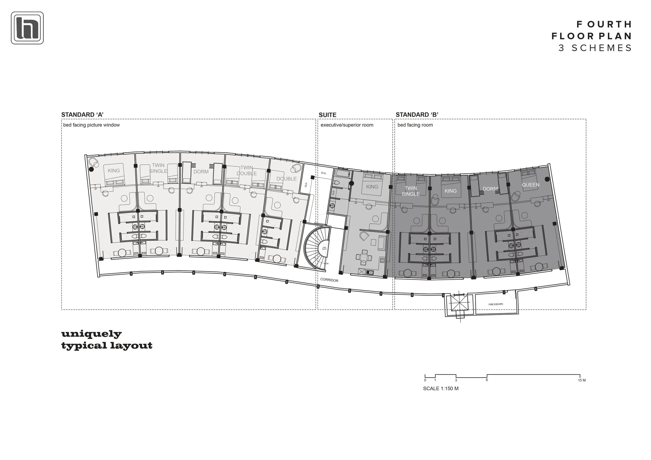
Uniquely typical, the absence of closed spaces allows for each room to maximize its flexibility in circulation for the natural progression of zones within the plan of each apartment unit. Bespoke locally-made furniture shall highlight not only the beauty of Filipino craftsmanship, but also create a dedicated space for multiple activities and touchpoints to the history of the building and the City of Manila.