
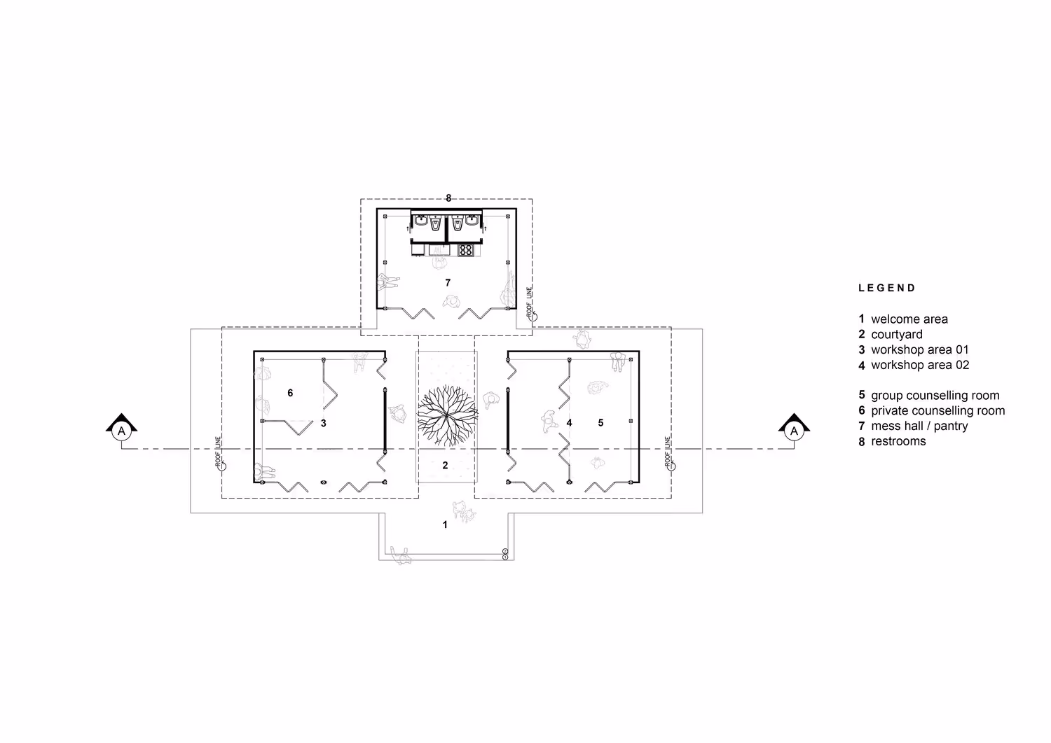
In the small town of Gines Nuevo, Iloilo province, Atelier FIJI was invited as lead architects in re-designing the family development center (family house) and planning the existing farm in collaboration with the community and CAMELEON Association Inc.
Fully ensconced by trees and the verdant farm site, the tagbaláy spirit of a ‘guardian making and protecting one’s own home’ is embodied here. Drawing from the local construction practices, the improved community center symbolizes strength and openness for the vulnerable as a support system that protects and enriches. The community center at Gines Nuevo has been serving as a main community and activity center for the parents and families.
Completed in 2021.